г Калининград, пл Победы, д 4, офис 20, 23
Пн-пт с 09:00 до 21:00, Сб-вс с 11:00 до 18:00

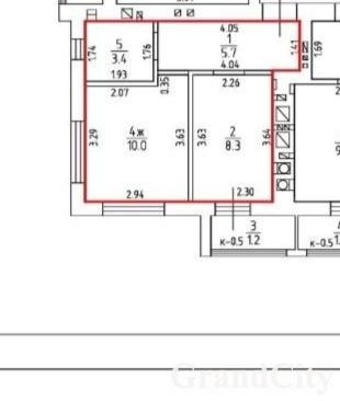
Продажа 1-к.квартира, 28.6 м², 3/10 эт. ID: J1066

Калининград, Московский, улица Флагманская, д.3

Комнаты 1
Площадь 28.6 м²
Жилая 10 м²
Кухня 9 м²
Этаж 3 из 10
Сдача 2023 г.
5 100 000
178 321 /м²
Рассчитать ипотеку
Бабанаков Михаил

Бабанаков Михаил
специалист по продаже недвижимости

+7(900)350-0364

babanakov1986@bk.ru
QR
Ссылка на объект

Описание

## Объявление о продаже квартиры

🔥 **Продаётся уютная однокомнатная квартира в Калининграде!**

✓ Год постройки дома — 2023 год
📏 Общая площадь: 28.6 м²
💡 Жилая площадь: 10 м²
🍽️ Площадь кухни: 9 м²
⚖️ Этаж: 3-й этаж (всего этажей в доме — 10)
👌 Совмещённый санузел
🛹 Лоджия
✈️ Ремонт, выполнен качественно и аккуратно
✨ Состояние объекта превосходное
✺ Интернет подключён
🧳 Есть мебель — вы въедете сразу и комфортно обустроитесь
🚶‍♂️ Высота потолков — 2.7 метра
🏠 Дом кирпичный, экологически чистый материал, тишина и спокойствие района

🎉 Уютный уголок для жизни и отдыха ждёт именно вас!

📞 Звоните прямо сейчас и узнайте подробности!

Характеристики

  • Тип недвижимости Квартиры
  • Населенный пункт Калининград
  • Район Московский
  • Адрес улица Флагманская, д.3
  • Количество комнат 1
  • Год постройки дома 2023 г.
  • Общая площадь 28.6 м²
  • Жилая площадь 10 м²
  • Площадь кухни 9 м²
  • Этаж 3
  • Этажей в доме 10
  • Тип санузла Совмещенный
  • Тип балкона лоджия
  • Ремонт евроремонт
  • Состояние объекта отличное
  • Наличие интернета да
  • Наличие мебели да
  • Мусоропровод нет
  • Вид из окон во двор
  • Высота потолков в метрах 2.7 м.
  • Тип дома кирпичный

Задать вопрос



Вас также может заинтересовать:

12
1-к.квартира, 41 м², 5/10 эт.
Калининград, улица Л.Иванихиной, д.4
Московский
4 350 000
  • Общая площадь:41 м²
  • Жилая площадь:20 м²
  • Площадь кухни:8 м²
  • Этаж:5
7
2-к.квартира, 40 м², 4/5 эт.
Калининград, улица А.Невского, д.188, к.1
Ленинградский
5 100 000
  • Общая площадь:40 м²
  • Жилая площадь:17 м²
  • Площадь кухни:8 м²
  • Этаж:4
14
3-к.квартира, 60 м², 1/2 эт.
Калининград, улица Взводная, д.7
Центральный
5 500 000
  • Общая площадь:60 м²
  • Жилая площадь:40 м²
  • Площадь кухни:8 м²
  • Этаж:1

Мы используем файлы cookie, чтобы обеспечить вам наилучший доступ к нашему веб-сайту

Скопировано